Overview
自然光の美しい撮影スタジオ
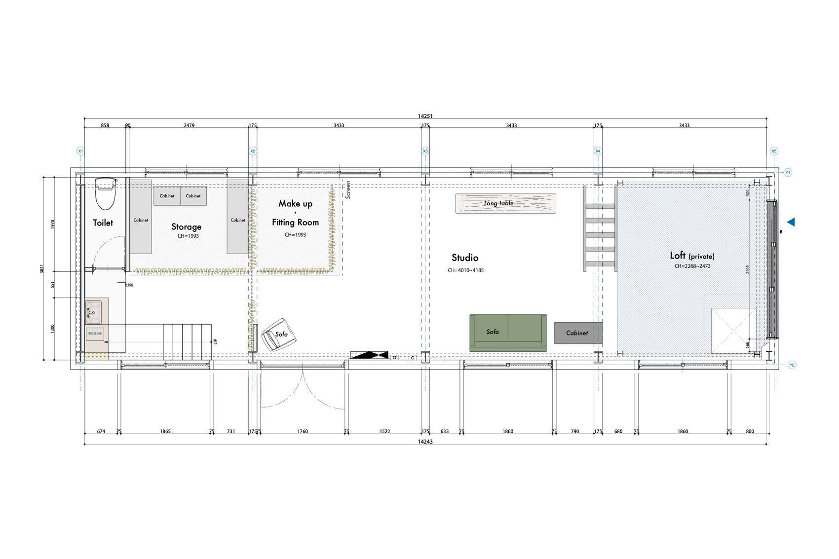
菊川駅徒歩4分の地にあるハイランドの事務所を兼ねたスタジオ。
自然光が美しい空間で、家族フォト、ブライダル/結婚式イメージフォト、カップルフォト、七五三などの記念写真/ビデオを撮影いたします。
また、ハウススタジオ、貸しスペースとしての空間貸しも可能です。
スチールや映像の撮影や、ワークショップなどのイベントスペースとしてご使用いただけます。ご相談ください。
Cafeスタイルのアンティーク家具やグリーンを揃えています。レイアウトを変更したり、プロジェクターで壁に映像を投影したり、様々な表情の画を撮影することができます。















